Elegant Rustic Cabins® Simplicity Carried to an Extreme, Becomes Elegance!
Elegant Rustic Cabins® Simplicity Carried to an Extreme, Becomes Elegance!

As custom home builders, we offer the flexibility to add upgrades to most of our floor plans. These upgrades include (but are not limited to) the features listed below. Some upgrades are model-specific, meaning if the cabin's floor plan does not accommodate a particular feature, it will not be included.

A fireplace can be included as an upgrade to your unit or relocated from its current position to an alternate spot, provided the chosen floor plan allows for such modifications.

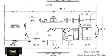
Screened or unscreened porches are available in three sizes: 8-foot, 10-foot, and 12-foot. The width will vary depending on the chosen model.

Bored with typical black or white appliances? Upgrade to sleek Stainless Steel or elegant Diamond Gray appliances. Add a stackable washer/dryer to match for a complete look.

Dreaming of French doors opening to a screened covered porch from within your tiny cabin? No problem! As custom home builders, we can make that upgrade happen, provided there's enough space in your cabin's floor plan.

No problem! As custom home builders, we can include a beautiful tiled shower in your tiny cabin, provided your selected layout permits it. Let's discuss your preferred tiles and patterns to create the shower of your dreams.

If the cabin's floor plan cannot accommodate a specific feature, it will not be an option for your tiny home. However, we'll work closely with you to find the perfect balance between functionality and aesthetics, ensuring your tiny home is uniquely yours.
You've selected your cabin layout and chosen all the upgrades for your tiny home. Now, you're probably wondering what comes next. We’ve got you covered! Here’s everything you need to know about the next steps in the process.
Important Information: Standard vs. Upgrade Features, Pricing, and Miscellaneous Disclaimers
Due to ongoing product improvements, structural design changes, and updates to building codes, Elegant Rustic Cabins, ERC Building Solutions, and It’s A Tiny Home (all subsidiaries of Elegant Rustic Cabins, LLC) reserve the right to modify specifications, pricing, delivery fees, standard features vs. upgrades, and company information at any time without prior notice or obligation. We may change, add, or remove features and specifications for tiny houses and cabins without prior notification. Some features may automatically change with new or modified codes and product improvements, including those mandated by RVIA Code, ANSI Code, our steel construction building codes, and International Building Codes
Elegant Rustic Cabins® is not responsible in any way whatsoever for the cabin hook-ups or tie-down process upon or after delivery. This responsibility lies solely with our clients and their selected fully licensed contractor(s) for all connections, hook-ups, tie-downs, and any related or unrelated property work. All necessary property work, to be completed prior to delivery, is also the sole responsibility of our clients.
------------------------------------------
Jennifer Lynne Burke
President / CEO
Phone: (586) 773-9775
(please leave a message, as only recorded messages are responded to)
jlburke@elegantrusticcabins.com
www.elegantrusticcabins.com
Elegant Rustic Cabins – Sales & Marketing
Manufacturing Plant – Production & Service
Trucking Company – Delivery & Drop Off
Clients – All property prep including clear, easy and safe path to home drop off location.
(please read Responsibility for Installation, Hook-ups, and Property Work outlined above)
Copyright© 2020 Elegant Rustic Cabins®, ERC Building Solutions® and
It’s A Tiny Home®, all Elegant Rustic Cabins, LLC Companies.
“Embrace the elegant charm of tiny home living."